Forestry
Cafe, Used Bookstore and Research Center
Rome, Italy
Fall 2021
Cafe, Used Bookstore and Research Center
Rome, Italy
Fall 2021
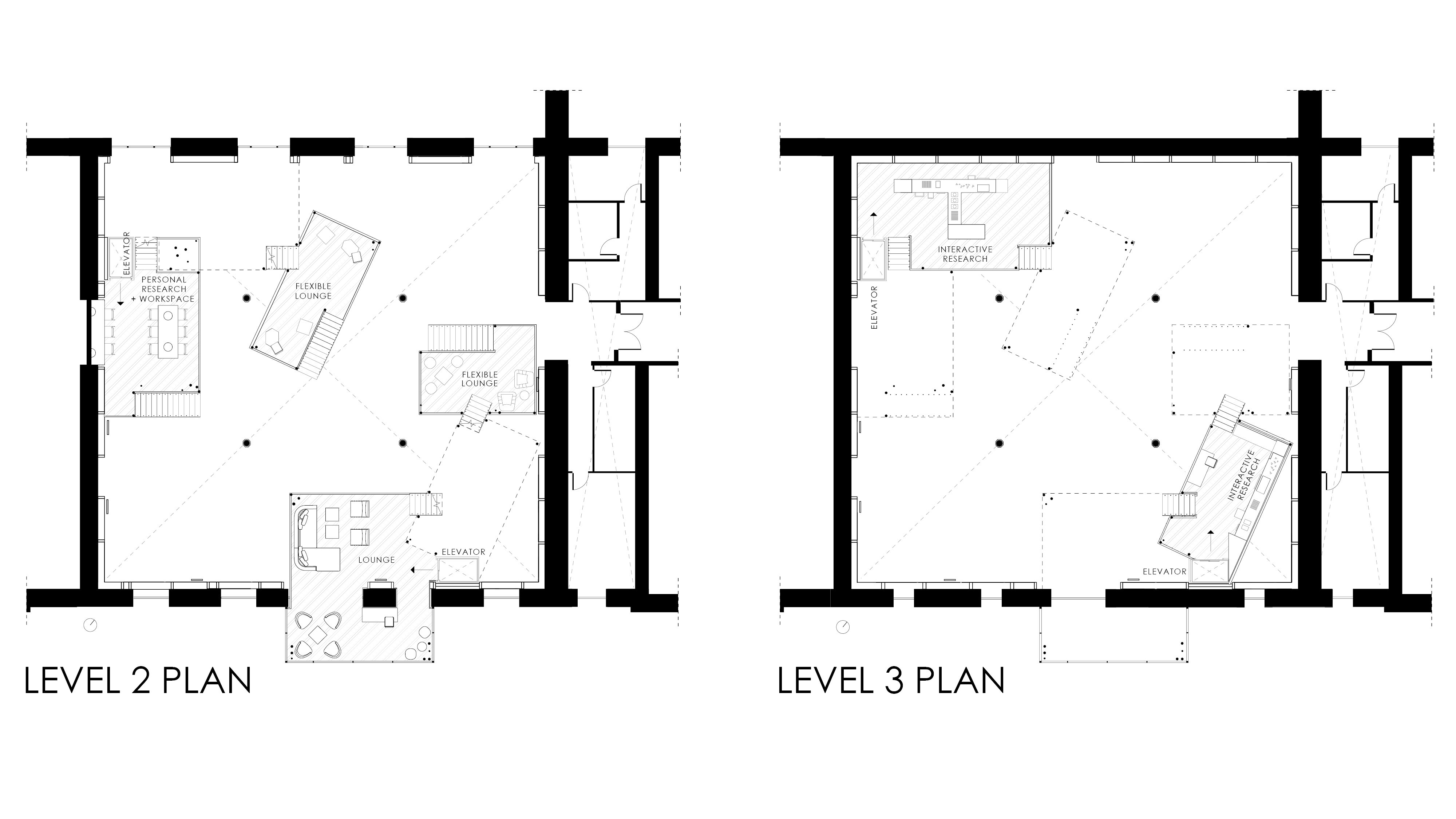
The project is located in the Flamino neighborhood of Rome within the MAXXI Café. The initial site analysis involved a critical look at the existing column grid, apetures, symmetry, and the existing structural elements within the space, as well as the surrounding green spaces. O ur client is the Italian National Institute for Environmental Protection and Research (also known as ISPRA), who’s goal is to utilize their research and funding to create a venue for community outreach through the means of a used bookstore.
“A room without books is like a body without a soul.” -
Cicero

project created with Audrey Wolz and Abby Vaught
University of Arkansas Rome Center